Bilocale in vendita

Binasco, Via M. Buonarroti
€ 155.000
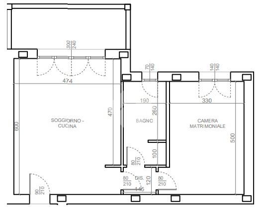
2 locali 2 locali
60 Mq 60 Mq
1 bagno 1 bagno

Bilocale in vendita

Binasco, Via M. Buonarroti

Descrizione annuncio

SONO APERTE LE PRENOTAZIONI

POSSIBILITA' DI USUFRUIRE DEL BONUS RISTRUTTURAZIONE AL 50% RISPARMIANDO FINO A 48.000 EURO SUL PREZZO DI VENDITA!!!

BINASCO: Sta per sorgere a Binasco una nuova palazzina residenziale dal carattere moderno ed esclusivo, pensata per chi desidera una casa che unisca comfort, efficienza e attenzione all'ambiente. Il progetto, in fase di prossima costruzione, è il risultato di un'attenta progettazione secondo i piÚ elevati standard di bioedilizia e risparmio energetico.

Ogni appartamento sarĂ  costruito con materiali di alta qualitĂ  e impianti di ultima generazione, per offrire ambienti eleganti, funzionali e personalizzabili nelle finiture. Il riscaldamento a pavimento garantirĂ  una distribuzione uniforme del calore, mentre la ventilazione meccanica controllata assicurerĂ  aria sempre fresca e salubre all'interno degli spazi.

Grazie all'utilizzo di pannelli fotovoltaici e impianto solare termico, l'intero complesso sarĂ  altamente sostenibile e capace di ridurre sensibilmente i consumi energetici. L'isolamento termo-acustico avanzato permetterĂ  di vivere in tranquillitĂ  e silenzio, anche nelle giornate piĂš frenetiche.

Ogni abitazione è stata progettata per offrire il massimo del benessere quotidiano, con predisposizione per aria condizionata e impianto d'allarme, oltre alla possibilità di abbinare ampi box auto.

Situata in una zona residenziale tranquilla ma ben collegata, questa nuova costruzione rappresenta una scelta ideale per famiglie, giovani coppie e per chi cerca un'abitazione moderna in un contesto riservato ma servito.

Questa non è solo una casa nuova: è il luogo dove potrai vivere con qualità, risparmiare energia e costruire un futuro migliore.
Vivi la casa che hai sempre desiderato: nuova, efficiente, confortevole.

Inizio lavori Primavera 2026.

Consegna prevista per Ottobre 2027

Presso La Nostra Agenzia, è possibile su richiesta, grazie ai nostri professionisti della Kiron, ricevere una consulenza gratuita ed accedere ad un'ampia gamma di prodotti Creditizi e assicurativi come:
-Mutui
-Cessioni del quinto dello Stipendio o Pensione;
-Consolidamento Debiti;
-Prodotti Assicurativi.

Mostra tutto

Nelle vicinanze

Trasporto pubblico Trasporto pubblico
Trasporto pubblico
920 m
Santa Corinna (Noviglio)
Santa Corinna (Noviglio)
970 m
Ricariche auto elettriche Ricariche auto elettriche
IONITY Binasco
1,5 Km
Farmacia Farmacia
Farmacia Santa Corinna
870 m
Farmacia
900 m
Supermercati Supermercati
MD
1,1 Km
Conad
1,5 Km
Supermercati
1,6 Km
Negozi Negozi
Express
710 m
Ristoranti Ristoranti
Ristoranti
810 m
Il Capriolo
1,0 Km
Central Park
1,9 Km
Wen Zhou Fandian
2,6 Km
Ristorante Pizzeria Al Solito Posto
2,6 Km
Mostra tutto

Caratteristiche

Rif.:
61125478
Piano:
1 di 2 con ascensore (Piano medio)
Balconi:
1
Camere da letto:
1
Arredamento:
Assente
Condizionamento:
Autonomo
Mostra tutto
Prezzo Prezzo
€ 155.000
Rata mutuo Rata mutuo
€ 724 / mese
Spese annue Spese annue
€ 0
Proponi il tuo prezzoProponi il tuo prezzo

Classe Energetica

A3
A3
A3
A3
A3
A3
A3
A3
A3
EP globale non rinnovabile:
0.00 kW h/m² anno
EP globale rinnovabile:
0.00 kW h/m² anno
EP invernale del fabbricato:
EP estiva del fabbricato:
Anno di costruzione:
2026
Riscaldamento:
Autonomo
Tipo impianto:
A pavimento
Tipo alimentazione:
Pannelli

Ti interessa visionare l'immobile?

Fissa un appuntamento  Fissa un appuntamento

Richiedi informazioni

Clicca su Leggi per aprire l'informativa
* Questi campi sono obbligatori

Calcola il tuo mutuo

Semplice e senza impegno
Anticipo

( % )
Mutuo

( % )

pochi semplici passi

inserisci i tuoi dati
Questionario completato
Grazie per aver richiesto un appuntamento senza impegno con un nostro Consulente del Credito e Assicurativo.

Hai inserito correttamente tutti i dati necessari e a breve riceverai una e-mail con un link da convalidare per inviare i tuoi dati.
Affiliato
Studio Binasco Sas
Via Matteotti, 5 20082 Binasco (MI)

Il nostro staff


  • Susanna Del Giudice
    Coordinatrice

  • Yara Boschetti
    Coordinatrice

  • Riccardo Gandini
    Affiliato

  • Emanuele Piccinonno
    Collaboratore
Via Matteotti, 5 20082 Binasco (MI)
Zona: Binasco - Casarile - S. Corinna - Vellezzo Bellini - Certosa di Pavia e Limitrofi
Mostra su mappa
Orari: Lunedi'-Venerdi' 09:00-12:30/14:30-20:00 Sabato 09:00-12:30/14:30-19:00
Affiliato
Studio Binasco Sas
Via Matteotti, 5 20082 Binasco (MI)

2026 Tecnocasa Franchising S.p.A. - P. IVA 08365160152 - Via Monte Bianco 60/A 20089 Rozzano (MI). Ogni agenzia ha un proprio titolare ed è autonoma. Privacy policy | Policy utilizzo | Cookie policy